Barriere Tartas l100
Référence: PA4545
garantie 2 ans
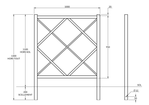
Plans cotés
product technical_plan
Description

Barrière en Acier Galvanisé avec Finition Thermolaquage Cette barrière en acier galvanisé à chaud est équipée d’une structure robuste avec des montants latéraux en tube carré de 50 x 50 mm et des lisses hautes et basses en tube de 40 x 40 mm. Les losanges intérieurs sont réalisés en tube acier galvanisé de 30 x 30 mm, tandis que les croix sont en tube acier de 20 x 20 mm. Elle est conçue pour être scellée sur plot béton.

Dimensions : Longueur : 100 cm Hauteur totale : 130 cm Hauteur hors-sol : 110 cm Poids : 17 kg

Dimensions
  • 130.00 cm
  • 100.00 cm
  • 17.00 kg
Couleurs
RAL au choix à la commande :
1021
3004
3020
5010
6005
7016
8017
9005
9010