POTELET BIARRITZ TETE SOUDEE Ø 11,4 HT 130 CM
Référence: BO3904
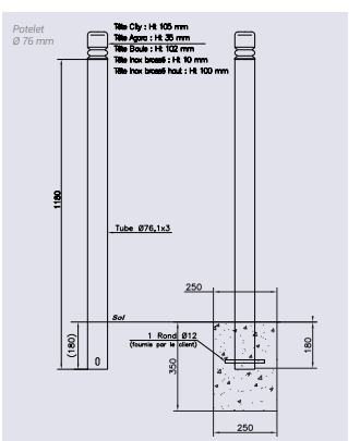
Plans cotés
product technical_plan
Description

Potelet en acier de Ø 11,4 cm et d'épaisseur 3 mm. Pommeau en fonte d'acier soudé. Existe en version simple et avec un ou deux anneaux soudés pour relier les potelets entre eux par une chaîne. Finition peinture sur zinc selon RAL ci-joint. A sceller. Peut être aussi fourni en version amovible.

Hauteur totale 130 cm Hauteur hors-sol 110 cm

Dimensions
  • 130.00 cm
  • 16.00 kg
  • 11.40 cm
  • 3.00 cm
Couleurs
Coloris au choix:
3004
5010
6005
8017
9005
9010